聯系我們
開來濕克威防水科技股份有限公司
地址:上海市閔行區浦江鎮聯川路258號8號樓
全國免費咨詢電話
開來:400-133-9198
SECOV(濕克威):400-133-9198
電子郵箱:2163631060@qq.com
地址:上海市閔行區浦江鎮聯川路258號8號樓
全國免費咨詢電話
開來:400-133-9198
SECOV(濕克威):400-133-9198
電子郵箱:2163631060@qq.com

防水知識
防水施工特殊部位做法
防水施工是指各種防水施工工藝,包括屋面防水、地下室防水、衛生間防水、外墻防水、地鐵防水等。在做防水施工的時候,會有一些特殊部位的防水卻是十分講究,也容易出現問題。那么針對這樣的特殊部位,防水應該怎么做呢?
1、底板后澆帶防水
底板后澆帶處先做防水卷材附加層,再大面鋪設防水卷材。在綁扎底板鋼筋時,用附加鋼筋將橡膠止水帶和鋼止水帶分別固定在底板后澆帶的底部和中間。
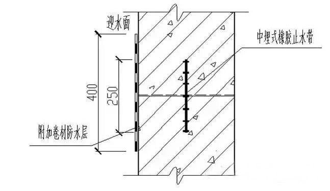
2、外墻后澆帶防水
地下室外墻后澆帶在做防水施工前,內側的卷材保護層先施工。鋪貼外墻卷材時,先在預制板外側鋪一層防水加強層,然后大面卷材直接鋪過與之蓋板。綁扎墻體鋼筋時,用附加筋將止水鋼板固定墻體中間。
3、墻體豎向施工縫止水帶
在支設結構模板時,把止水帶的中間夾于木模上,同時將木板釘在木模上,并把止水帶的翼邊用鋼絲固定在側模上,然后澆筑混凝土,待混凝土達到一定強度后,拆除端模,用鋼絲將止水帶另一翼邊固定在側模上,再澆筑另一側的混凝土。
4、外墻防水
卷材搭接鋪貼外墻卷材之前,應先將接槎部位的卷材揭開,并將其表面清理干凈。如卷材有局部損傷,應及時進行修補后方可繼續施工。兩層卷材應錯槎接縫,錯開距離不得小于350㎜,上層卷材應蓋過下層卷材。兩幅卷材的搭接長度,長邊與短邊均應不小于100mm。
5、外墻散水防水
防水收口位置設置在距室外散水150mm處,末端先用3mm×25mm金屬壓條鋼釘固定(間距200mm),用鋼釘固定后再用密封膠將上口密封。散水與外墻之間預留30mm寬的縫隙,采用嵌縫密封材料灌嚴。
6、施工縫止水鋼板
鋼板的凹面應朝向迎水面,轉角處止水鋼板應做成45°角。止水鋼板居中布置。橡膠止水帶及鋼板橡膠止水帶做法同上。
7、施工縫止水條
在澆筑混凝土時,在施工縫部位埋植30㎜×10㎜木條,沿墻厚居中留置出寬30㎜、深10㎜通長凹槽,混凝土接縫前將止水條放入凹槽內,用水泥釘固定。遇水膨脹止水條應具有緩脹性能。
8、螺栓孔眼處理
拆模后將預埋的墊塊取出,沿混凝土結構邊緣將螺栓割斷,對割斷處進行涂刷防銹漆處理后,嵌入瀝青基密封材料(嵌入2/3),之后用聚合物砂漿將螺栓眼抹平。
9、柔性穿墻管迎水面防水
在進行大面積防水卷材鋪貼前,應先穿好帶有止水環的設備管道(止水環外徑比套管內徑小4mm),并固定好,設備管道與套管之間的縫隙先填塞瀝青麻絲,再填塞聚硫密封膠,將防水卷材收口嵌入設備管道與套管之間的縫隙,再用聚硫密封膠填實,之后做一層長方形加強層防水卷材。穿墻管與內墻角凹凸部位的距離應大于250mm,管與管的間距應大于300mm。
10、電梯井、集水坑防水
電梯井、積水坑基層陰陽角必須做成≥50mm的圓弧或45°(135°)八字角,陰陽角、立面內角、外角及施工縫處均做500mm寬的附加層。電梯井、積水坑斜面的第二層防水卷材采用帶有砂粒的,以便于后施工的水泥砂漿類防水保護層與基層粘結牢固。
1、底板后澆帶防水
底板后澆帶處先做防水卷材附加層,再大面鋪設防水卷材。在綁扎底板鋼筋時,用附加鋼筋將橡膠止水帶和鋼止水帶分別固定在底板后澆帶的底部和中間。

地下室外墻后澆帶在做防水施工前,內側的卷材保護層先施工。鋪貼外墻卷材時,先在預制板外側鋪一層防水加強層,然后大面卷材直接鋪過與之蓋板。綁扎墻體鋼筋時,用附加筋將止水鋼板固定墻體中間。

在支設結構模板時,把止水帶的中間夾于木模上,同時將木板釘在木模上,并把止水帶的翼邊用鋼絲固定在側模上,然后澆筑混凝土,待混凝土達到一定強度后,拆除端模,用鋼絲將止水帶另一翼邊固定在側模上,再澆筑另一側的混凝土。

卷材搭接鋪貼外墻卷材之前,應先將接槎部位的卷材揭開,并將其表面清理干凈。如卷材有局部損傷,應及時進行修補后方可繼續施工。兩層卷材應錯槎接縫,錯開距離不得小于350㎜,上層卷材應蓋過下層卷材。兩幅卷材的搭接長度,長邊與短邊均應不小于100mm。

防水收口位置設置在距室外散水150mm處,末端先用3mm×25mm金屬壓條鋼釘固定(間距200mm),用鋼釘固定后再用密封膠將上口密封。散水與外墻之間預留30mm寬的縫隙,采用嵌縫密封材料灌嚴。
6、施工縫止水鋼板
鋼板的凹面應朝向迎水面,轉角處止水鋼板應做成45°角。止水鋼板居中布置。橡膠止水帶及鋼板橡膠止水帶做法同上。

在澆筑混凝土時,在施工縫部位埋植30㎜×10㎜木條,沿墻厚居中留置出寬30㎜、深10㎜通長凹槽,混凝土接縫前將止水條放入凹槽內,用水泥釘固定。遇水膨脹止水條應具有緩脹性能。

拆模后將預埋的墊塊取出,沿混凝土結構邊緣將螺栓割斷,對割斷處進行涂刷防銹漆處理后,嵌入瀝青基密封材料(嵌入2/3),之后用聚合物砂漿將螺栓眼抹平。

在進行大面積防水卷材鋪貼前,應先穿好帶有止水環的設備管道(止水環外徑比套管內徑小4mm),并固定好,設備管道與套管之間的縫隙先填塞瀝青麻絲,再填塞聚硫密封膠,將防水卷材收口嵌入設備管道與套管之間的縫隙,再用聚硫密封膠填實,之后做一層長方形加強層防水卷材。穿墻管與內墻角凹凸部位的距離應大于250mm,管與管的間距應大于300mm。

電梯井、積水坑基層陰陽角必須做成≥50mm的圓弧或45°(135°)八字角,陰陽角、立面內角、外角及施工縫處均做500mm寬的附加層。電梯井、積水坑斜面的第二層防水卷材采用帶有砂粒的,以便于后施工的水泥砂漿類防水保護層與基層粘結牢固。
文章來源:www.bjlhjy.net.cn
推薦新聞